電話:021-59965667 59988753
傳真:021-56467791
郵箱:shzgv@www.pkcu.cn
地址:上海市崇明區猛將廟南所(合作公路1118號)
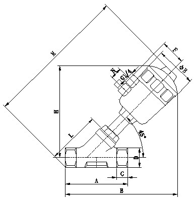
氣動不銹鋼角座閥產品特點
『氣動不銹鋼內螺紋角座閥』專業生產廠家,由正鋼自主研發生產的【角座閥】質量可靠、價格合理、售后服務完善。『氣動不銹鋼內螺紋角座閥』適用于各種輕重工業及樓宇管道。正鋼品質,全球共享!【角座閥】廣泛應用于:啤酒飲料灌裝設備 制藥及醫療設備 印染紡織 化工行業 氣體工業 高溫滅菌 發泡機械 水/污水處理等領域。

工作原理
在非工作狀態時,由于彈簧力作用,閥門常閉(開)。當執行器活塞被壓縮氣體作用時,閥門打開(關閉)。雙作用形式靠壓縮氣體控制閥門開關。
氣動角座閥產品特點
流量大,流阻小,無水錘
Y型設計,增加30%流量
超長使用壽命
閥桿自動校正,自潤滑,免維護
氣缸采用不銹鋼材質,在惡劣環境中更加優秀,可360°旋轉。
本文章來自:上海正鋼閥門制造有限公司 如有疑問可以給我們來電☏:400-6868-625 http://www.www.pkcu.cn/1335.html